Office Space at 413 W. Idaho Street in Boise
413 W Idaho St, Boise, ID 83702
4th & Idaho
4th & Idaho
413 W. Idaho Street Office Space for Rent
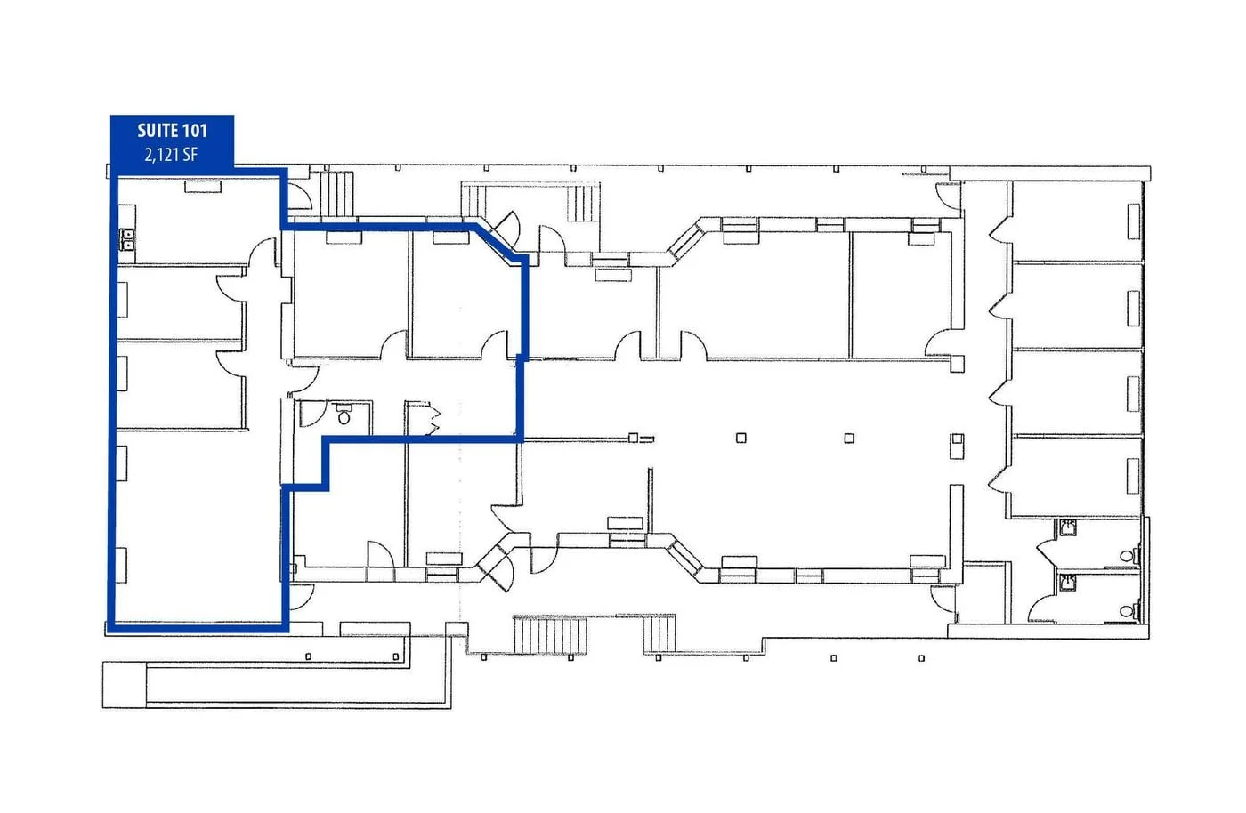
1 Space AvailableProperty Details
Property Type
Office
Property Size
15,170 sqft
Last Updated
3/5/2025
Landlord's Leasing Agent Representative
(208) 947-0802
413 W. Idaho Street location
City
Boise
Neighborhood
Downtown
Zip Code
83702
Market
Boise


